RAUMWUNDER

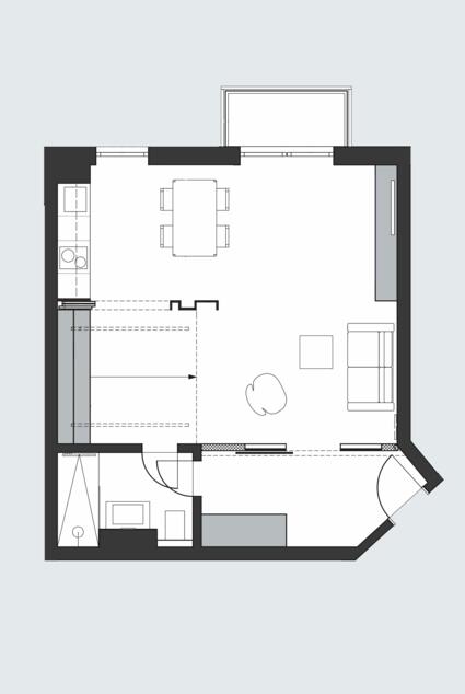
Der geschickte Einsatz mobiler Wände und intelligent konzipierter, beweglicher Möbeleinbauten erschafft eine hohe Flexibilität in der Nutzung und gleichzeitig räumliche Großzügigkeit auf kleinstem Raum.
Verschiedene Funktionsbereiche können nach dem Umbau der Wohnung voneinander abgetrennt oder zugeschaltet werden. So haben zwei Personen nun die Möglichkeit, sich voneinander ungestört in verschiedenen Bereichen der Wohnkapsel aufzuhalten oder durch Verschieben der beweglichen Elemente einen großzügigen Raum gemeinsam zu nutzen.
Die Begeisterung der Bauherren für japanische Architektur spiegelt sich in dem runden Portal zwischen Windfang und Wohnbereich wieder. Hochwertige Oberflächen komplettieren das anspruchsvolle Architekturkonzept.
Standort | München |
Realisiert | 2015 |
Bruttogeschossfläche | 50 m² |
Leistungsphasen | 1 - 8 |







